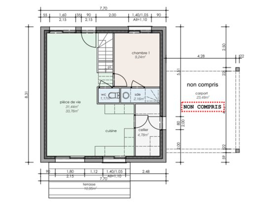
Maison DUBREUIL — 86,36 m², 4 chambres, 2 salles de bain
Compacte et bien pensée, la Maison DUBREUIL offre un agencement intelligent pour optimiser chaque mètre carré. Avec ses 4 chambres, ses 2 salles de bain et une surface de 86,36 m², elle est parfaitement adaptée pour un projet familial ou un premier achat exigeant.
Proposée à partir de 150 820 €, ce modèle est disponible en version plan standard ou en version 100 % personnalisable, pour adapter l’agencement, les finitions et l’implantation à votre terrain, à vos envies et à votre budget.
Caractéristiques
- Surface : 86.36 m²
- Pièces : 6
- Chambres : 4
- Nb salles de bains : 2
Plan
