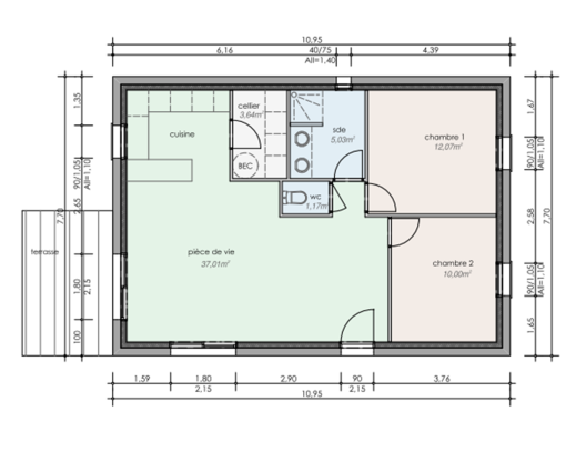
Maison PONC — 69 m², 2 chambres, 1 salle de bain
Compacte, fonctionnelle et économique, la Maison PONC s’adapte parfaitement aux petits terrains ou aux primo-accédants. Avec ses deux chambres bien agencées, une salle de bain confortable et un espace jour lumineux, ce modèle offre un vrai confort de vie malgré sa taille réduite.
Proposée à partir de 126 510 €, elle est disponible soit en plan déjà conçu, soit en version 100 % personnalisable, vous permettant d’ajuster chaque détail selon vos envies, votre terrain et votre budget.
Caractéristiques
- Surface : 68.92 m²
- Pièces : 4
- Chambres : 2
- Nb salles de bains : 1
Plan
