





Contactez Yann MADOUAS au 06 69 39 18 07 ou 0800 85 23 23 (Maisons CBI - Agence de Muzillac).
Prix avec assurance Dommages-Ouvrages comprise. Hors peintures et sols des chambres, hors VRD, terrain viabilisé, assainissement compris, frais de notaire non compris, taxes non comprises, frais divers non compris. Terrain sélectionné et vu pour vous sous réserve de disponibilité et au prix indiqué par notre partenaire foncier. Visuels non contractuels.
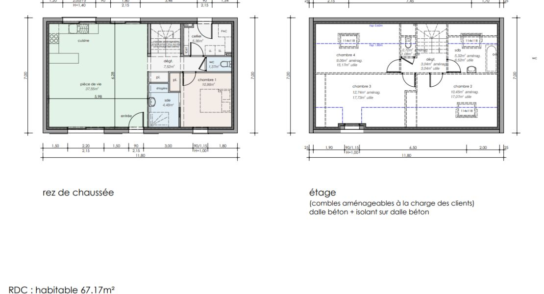
Caractéristiques
Informations complémentaires
Posée au large de Lorient, l’Île de Groix offre un cadre de vie rare, entre falaises sauvages, criques intimistes et plages emblématiques. On y trouve des commerces essentiels ouverts à l’année et une vraie vie de village, animée par des associations engagées. L’ambiance y est à la fois simple, chaleureuse et authentique. Un lieu unique pour profiter pleinement de l’air marin et d’un quotidien hors du temps.Localisation