Maison 67 m² avec terrain à GROIX (56) TMYM0040250E5490AE

Projet de construction à GROIX - TMYM0040250E5490AE

  • image Maison 67 m² avec terrain à GROIX (56)
  • image Maison 67 m² avec terrain à GROIX (56)
  • image Maison 67 m² avec terrain à GROIX (56)

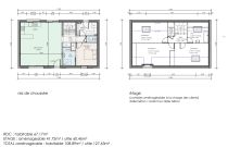
Maison 67 m² avec terrain à GROIX (56)

313 580 €

A propos de cette offre de maison avec terrain

Devenez propriétaire de votre maison neuve personnalisée avec Maisons CBI (constructeur depuis plus de 30 ans) :

• Plan sur-mesure
• Chauffage adapté (aérothermie…)
• Prestations design (cuisine, carrelage, salles de bains…)
• Menuiseries couleurs avec volets roulants électriques
• Porte d’entrée design et porte de garage motorisé

Informations du terrain : Posée au large de Lorient, l’Île de Groix offre un cadre de vie rare, entre falaises sauvages, criques intimistes et plages emblématiques. On y trouve des commerces essentiels ouverts à l’année et une vraie vie de village, animée par des associations engagées. L’ambiance y est à la fois simple, chaleureuse et authentique. Un lieu unique pour profiter pleinement de l’air marin et d’un quotidien hors du temps.

Contactez Yann MADOUAS au 06 69 39 18 07 ou 0800 85 23 23 (Maisons CBI - Agence de Muzillac).

Prix avec assurance Dommages-Ouvrages comprise. Hors peintures et sols des chambres, hors VRD, terrain viabilisé, assainissement compris, frais de notaire non compris, taxes non comprises, frais divers non compris. Terrain sélectionné et vu pour vous sous réserve de disponibilité et au prix indiqué par notre partenaire foncier. Visuels non contractuels.


Caractéristiques

  •   Modèle présenté : Groisionne comble aménageable
  •   Surface : 67 m²
  •   Pièces : 3
  •   Chambres : 1
  •   Garage :  m2
  •   Commune : 56590 GROIX
  •   Surface terrain : 320 m²
  •   En lotissement : non
  •   Prix : 140 000  €

Informations complémentaires

Posée au large de Lorient, l’Île de Groix offre un cadre de vie rare, entre falaises sauvages, criques intimistes et plages emblématiques. On y trouve des commerces essentiels ouverts à l’année et une vraie vie de village, animée par des associations engagées. L’ambiance y est à la fois simple, chaleureuse et authentique. Un lieu unique pour profiter pleinement de l’air marin et d’un quotidien hors du temps.

Localisation

Demandez votre étude gratuite personnalisée

* champ obligatoire