



Contactez Yann MADOUAS au 02 99 72 59 90 ou 0800 85 23 23 (Maisons CBI - Agence de Muzillac).
Prix avec assurance Dommages-Ouvrages comprise. Hors peintures et sols des chambres, hors VRD, terrain viabilisé, assainissement compris, frais de notaire non compris, taxes non comprises, frais divers non compris. Terrain sélectionné et vu pour vous sous réserve de disponibilité et au prix indiqué par notre partenaire foncier. Visuels non contractuels.
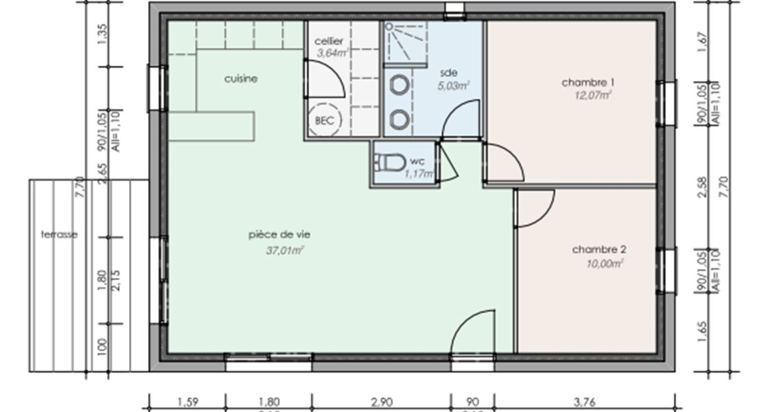
Caractéristiques
Informations complémentaires
sainte -Hélène sur mer ,cette commune authentique entre terre et mer.au bord de la ria d'Etel, découvrez toute une palette de paysages dignes d'une carte postale: ports typique ,marais, criques ,idéal pour randonnée ou pour la pêche. l'ile de st Cado véritable joyau de la région. Idéalement situé entre Lorient et Auray, vous serez a proximité des sites touristiques: Erdeven et ses plages Carnac, Auray et son port de st goustan.Localisation