







Contactez Yann MADOUAS au 02 99 72 59 90 ou 0800 85 23 23 (Maisons CBI - Agence de Muzillac).
Prix avec assurance Dommages-Ouvrages comprise. Hors peintures et sols des chambres, hors VRD, terrain viabilisé, assainissement compris, frais de notaire non compris, taxes non comprises, frais divers non compris. Terrain sélectionné et vu pour vous sous réserve de disponibilité et au prix indiqué par notre partenaire foncier. Visuels non contractuels.
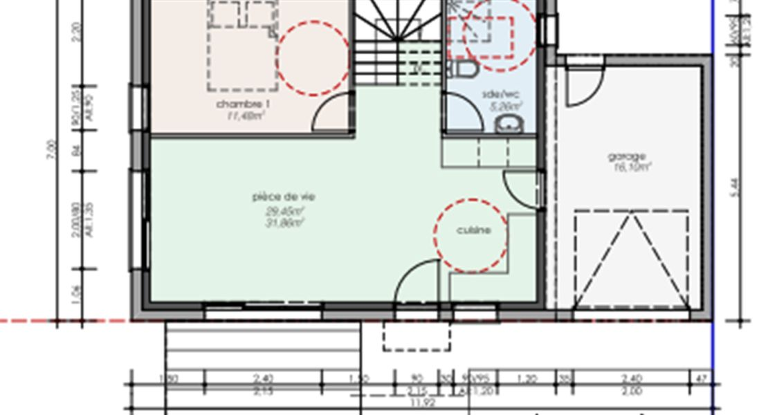
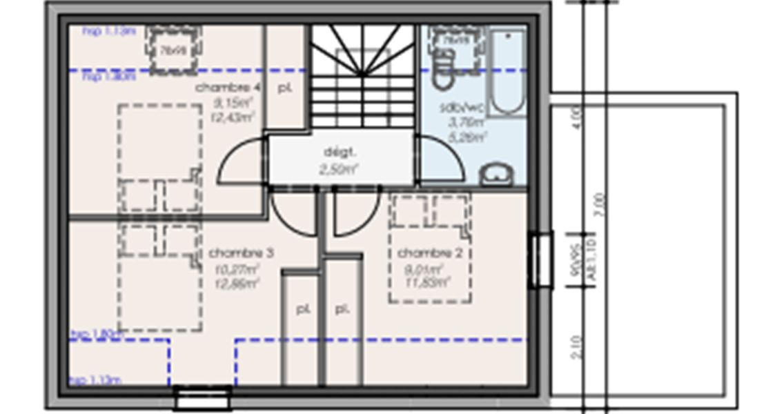
Caractéristiques
Informations complémentaires
Sarzeau est une commune située dans le département du Morbihan sud de la région bretagne .elle se trouve sur la presqu'ile de Rhuys, entre le golfe du Morbihan et l'océan atlantique . au nord par le golfe du Morbihan et au sud par l'OCEAN atlantique . avec plus de 65km de cotes , Sarzeau est l'une des communes de bretagne et même de France qui disposent du plus long littoral.Localisation